Services

Our goal at smart executive offices is to help the startups to have a stable place to work from if it was private offices or flexible desk arrangement. Working from home is good, but creatives sometimes need a quiet office type environment to bring their creation to a new level and a place where they can have professional meetings that might impress investors and clients and make them feel more confident.

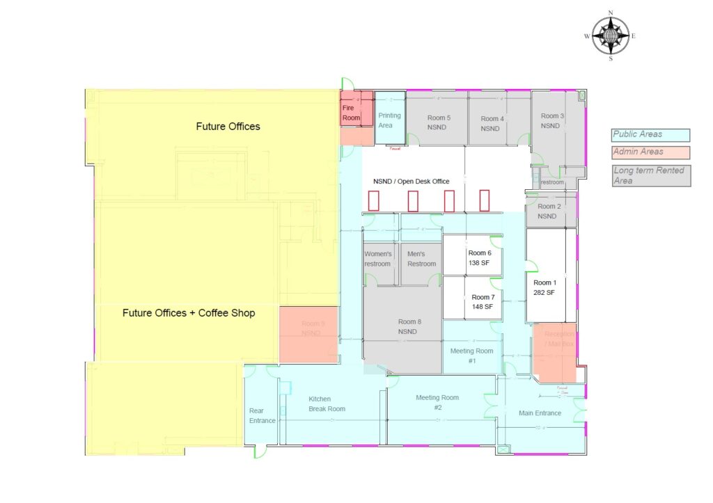
FLOOR PLAN

Amenities on Site

  • Kitchen, with coffee machine, hot water, microwave, stove, and fridge.
  • Complimentary private mailing address for pickup from the office or mailed for a fee.
  • Teleconferencing capability free if rented for 3 or more hours, or an extra $50 per hour.
  • Complementary fast wifi.
  • Complementary phone for all receiving calls or local calls (area code 725) & payment plans for calling out.
  • Print area with $0.2 per B/W page, $0.4 for Color page. Copy for 0.15 for B/W page and $0.3 for color page. Scan $0.05 per page.
  • Complementary Recipients and phone service to transfer calls. Extra $250 per month for additional services, including taking messages.

Pricing

Private offices, with windows to inside with up to 4 desks can be arranged.
Please call for a quote.  
Private office, fully furnished, with desk, cabinets, and small sitting and meeting area.
Please call for a quote.  

Virtual offices for $95 per month, with the capability of renting private desks for limited times when needed to be out of home, for $200 per week.

Meeting room with 10 seats or more for $100 per hour

Meeting rooms 6 seats for rent $50 per hour.